


144 806 ₽/м²
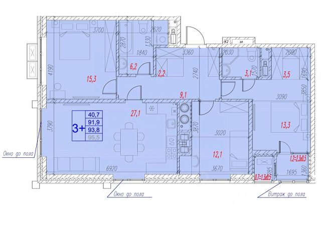
Продаётся 3-комнатная квартира в строящемся доме (Дом 4), срок сдачи: IV-кв. 2027, общей площадью 71.82 кв.м., на 3 этаже. Современный жилой комплекс "Лотос Парк" возводится в самом центре города. В шаговой доступности находятся достопримечательности и парки города. Рядом расположены школы, детские сады, торговые центры и бассейн. "Лотос парк" - это единое приватное пространство с кинотеатром, зоной барбекю, многофункциональной спортивной площадкой и двухуровневыми детскими зонами. Планировки квартир имеют нетривиальные проектировочные решения и впечатляют своим объемом (высота потолков от 3 до 3,4 м), вариативностью (площадь квартир от 40 до 130 кв. м., приватностью (от 2-х квартир на площадке) и завораживающими видами из панорамных окон. Квартира сдается с предчистовой отделкой с современным качественной инженерией и техническим оснащением: - Немецкий двухконтурный газовый котёл Vaillant turboFIT VUW 242/5-2 (H-RU). Автоматического типа с системами защиты и экономии топлива, мощностью 23,7 кВт для обогрева до 230 м2 - Входная дверь Torex DELTA-100 с тремя слоями теплоизоляции и шумоизоляции защитят от холода, сквозняков и шума из подъезда. В двери установлено два замка, с внешней стороны у дверей порошково-полимерное покрытие, устойчивое к ударам и царапинам - Видеодомофон. Расширенная системи видеонаблюдения, включающая более 300 камер, которые охватывают межквартирые площадки, лифты, подъездные холлы, придомовую территорию и паркинг - Видеонаблюдение. Закрытая приватная территория, автоматизированные ворота и пешеходные калитки, подключенные к системе видеодомофонии. Проектом предусмотрен пост физической охраны по ул. Трофимова - Остекление тёплым алюминиевым профилем Alutech W62. Группа компаний Alutech — ведущий производитель алюминиевых профильных систем в СНГ. Алюминиевый профиль класса А более прочный, по сравнению с ПВХ-профилем, и гарантирует высокий уровень шумоизоляции и теплоизоляции. - Премиальные лифты. В каждом подъезде пассажирские и грузопассажирские лифты премиум-класса: скоростные, бесшумные и энергоэффективные.






























































































