Мы используем куки-файлы. Соглашение об использовании
Только на Циан

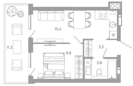
Продается 1-комн. квартира, 45,7 м²

Общая площадь45,7 м²
Этаж1 из 25
Год сдачи2026
ДомНе сдан
ОтделкаПредчистовая
"ГАГАРИН" — это космический проект от компании "РАЗУМ", создателя "НАСЛЕДИЕ" и "Сердце Каспия". Три 25-этажных дома, как три ступени ракеты "Восток-1", на которой Юрий Гагарин отправился в космос, станут для жителей отправной точкой в начинаниях. В районе есть необходимая инфраструктура для жизни: магазины, школы, детские сады, спортивный комплекс "Звездный", гипермаркет "Лента". В первом доме комплекса есть коммерческие помещения, которые дополнят район новыми локациями. В квартирах установлены окна с отступом 50 см от пола. На пяти верхних этажах располагаются квартиры с панорамным остеклением в пол — доступны виды на весь город и Астраханский кремль! 12 планировок квартир от 25 м² до 75 м² позволят выбрать подходящий вариант для счастливой жизни. В доме представлены квартиры с балконом и без них. На каждом этаже расположено 3 кладовых помещения. "ГАГАРИН" — это: - собственный двор-парк без машин; - тематические зоны в двор-парке: пространства для отдыха и релакса с гамаками и шезлонгами, амфитеатр, зона work-out, детские игровые площадки, разделенные по возрастам, первая в городе тарзанка, водные и скалолазные конструкции, песочницы, батуты; - многоуровневое освещение и видеонаблюдение по периметру комплекса; - гостевой и многоуровневый паркинг; - просторные подъездные холлы. В основе комплекса "ГАГАРИН" заложено продуманное проектирование квадратных метров. Квартиры продаются с предчистовой отделкой.

О квартире

Тип жилья

Новостройка

Общая площадь

45,7 м²

Высота потолков

2,82 м

Отделка

Предчистовая

О доме

Количество лифтов

2 пассажирских, 4 грузовых

Тип дома

Монолитный

Пандус

Есть

Понравилась квартира — узнайте о ней больше

Застройщик ответит на все вопросы

Отделка квартиры

Предчистовая — остаётся установить сантехнику, розетки, двери и навести красоту: поклеить обои и уложить на пол покрытие

Отделка в ЖК

  • Чистовая с мебелью
  • Чистовая
  • Предчистовая
  • Без отделки
Похоже на то, что вы ищете?

Акции в ЖК «Гагарин»

Узнайте про персональные условия и дополнительные скидки при покупке квартиры у застройщика

Рассрочка без удорожания

Отделка White Box в подарок

Материнский капитал

Персональные условия

Обмен квартиры

Ипотечный калькулятор
  • Базовая
  • Семейная
  • ИТ-ипотека
  • 20%
  • 30%
  • 40%
  • 50%
лет
  • 10 лет
  • 20 лет
  • 30 лет
Загружаем предложения от застройщика и банков

Расположение

Корпус проверен наш.дом.рф
Обновлено 7 мая 2026
  • Нет в реестре проблемных объектов
  • Застройщик не банкрот
  • Есть эскроу счёт
  • Актуальные фото стройки

Ещё квартиры в жилом комплексе

203 квартиры в продаже · Сдача в 3 кв. 2026, есть сданные
Автор объявления

Застройщик «Девелоперская компания РАЗУМ»

Надежный застройщик
Девелоперская компания “РАЗУМ” - надежный федеральный застройщик России с 12-летним опытом. В портфеле компании 12 проектов, из которых 8 в Астрахани: жилой комплекс «Волжская Ривьера», «Сердце Каспия», «ГАГАРИН», квартал «НАСЛЕДИЕ», жилой район «Зеленые ...
7 600 000 ₽
Цена за метр
166 302 ₽/м²
Условия сделки
свободная продажа