145 795 ₽/м²
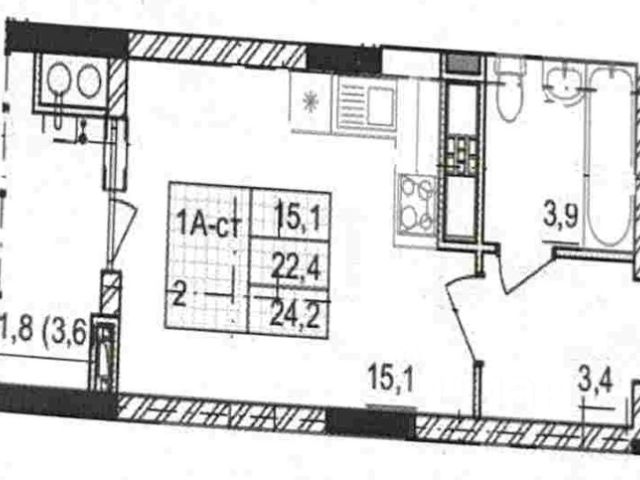
Продается студия в ЖК "РАЗУМ на Боевой" 18-этажный дом расположен в самом центре Советского района, на улице Боевая. В пешей доступности: - 3 школы; - 3 детских сада; - магазины; - автобусная остановка; Во дворе-парке для детей создана своя развивающая среда, где каждый ребёнок может найти себе занятия и игры по душе. Здесь дети активно развиваются и познают окружающий мир. Игровые конструкции изготовлены из натуральных материалов, поэтому они не замерзают на морозе и не нагреваются на солнце. Необычные формы конструкций развивают образное мышление у детей и помогают им придумывать интересные и нестандартные игры. "РАЗУМ на Боевой" — это: - территория без машин; - безбарьерная среда; - единый эко-стиль в оформлении дворового пространства; - увеличенная площадь озеленения во дворе-парке; - многоуровневое освещение и подсветка фасадов; - видеонаблюдение; - эстетичные подъездные холлы; - колясочные и велосипедные зоны; - кладовые на каждом этаже.








































































