


159 334 ₽/м²
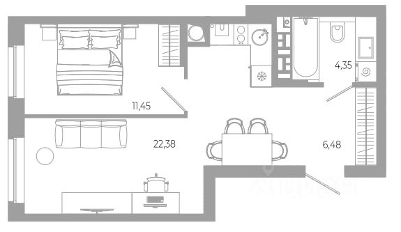
Жилой квартал "Семейный" это современный проект с продуманным подходом к организации пространства, в котором сочетаются уют, функциональность и комфорт для будущих жильцов. Комплекс состоит из домов II очередей. Срок сдачи в эксплуатацию I очереди 1 квартал 2025 года. Начало строительства II очереди 1 квартал 2025. Количество квартир в доме 327. Высота потолков 2,80 м. В каждом подъезде будет установлен бесшумный грузопассажирский лифт. На территории жилого квартала расположен двор-парк площадью 0,4 Га. Первый этаж жилой, за исключением нескольких общественных зон: гостевой санузел; зона для вашего питомца "Чистые лапки"; пеленальная зона. Комплекс сочетает в себе все преимущества спального района: развитую инфраструктуру и отсутствие высокого автомобильного трафика, что напрямую влияет на его экологичность. Квартира в ЖК "Семейный" прекрасно подойдет и для семей с детьми, и для молодых людей, следящих за своим здоровьем, а также для пожилых людей. Прямая продажа от застройщика RES DEVELOPMENT Продается квартира в строящемся 10-ти этажном монолитно-кирпичном доме жилого квартала "Семейный". Уютная светлая квартира-студия площадью 23,93 м² идеально подойдет молодым, творческим, современным людям, живущим одним, или паре без детей. Просторная комната площадью 20,42 м² хорошо освещена. При необходимости можно зонировать пространство по своему усмотрению. Санузел в квартире совмещенный. На площади 3,51 м² можно разместить всю необходимую сантехнику и прачечную зону. Высота потолков в квартире 2,80 м. Продуманная планировка жилплощади подойдет для тех, кто любит уединение и отсутствие лишних деталей. В квартире будет установлен двухконтурный газовый котел. Также будут возведены пазогребневые межкомнатные перегородки, что при необходимости дает возможность реализовать проект по своему дизайну. Двухкамерный стеклопакет, предусмотренный в квартире, защитит вас от пыли и шума, а качественную входную дверь не придется менять после заселения. Купить квартиру-студию в готовой новостройке в Астраханской области.

























































































