Первичная продажа



С отделкой
сдача ГК: 3 кв. 2026 года
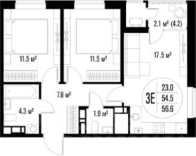
9 266 000 ₽
163 710 ₽/м²
Жилой квартал "Центральный" традиции качества, авторская архитектура и современные технологии.
Расположенный в самом центре он точно удивит вас своей масштабностью! Эксклюзивный проект строительной корпорации "Девелопмент-Юг" с собственным прогулочным бульваром, современными детскими и спортивными площадками.
Квартал предполагает строительство тринадцати современных домов. Панорамные окна открывают завораживающий вид на исторический центр города и Астраханский Кремль. Жилой квартал "Центральный" это дома нового поколения для людей, которые выше всего ценят качество, комфорт, безопасность и своё время, выбирая лучшее для своей семьи.
В каждой квартире предусмотрено индивидуальное отопление. Монолитно-кирпичная технология строительства и высококачественные окна REHAU GRAZIO обеспечивают высокую степень шумоизоляции. А эргономичные планировки помогут максимально эффективно оптимизировать пространство вашей квартиры.
Приобрести квартиру в жилом квартале "Центральный" можно с предчистовой отделкой White Box или готовой отделкой под ключ от застройщика.
На сегодняшний день доступна опция online-регистрации сделки и дистанционный показ квартиры.
Монолитно-кирпичные дома
Индивидуальная система отопления
Собственный прогулочный бульвар
Отделка квартир "под ключ"
Панорамное остекление лоджий
Современные детские площадки
Домашний стадион
IP-домофония
Просторные дворы
Центр города. Развитая инфраструктура 2-комнатная квартира на улице Ахшарумова в городе Астрахань.

















































































