166 000 ₽/м²
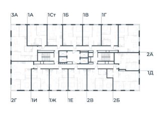
Продаётся 2-комнатная квартира в строящемся доме (Дом 1), срок сдачи: II-кв. 2026, общей площадью 50.6 кв.м., на 7 этаже. Жилой комплекс "Голос Эпохи" возводится в центральной части города Астрахань. Представляет собой девяти этажное кирпично-монолитное здание на 192 квартиры и 16 офисных помещений, выполненное в стиле АР-ДЕКО. Основные черты архитектуры здания: роскошь, помпезность, величественность и монументальность Сталинского Ампира, выполненные в современном стиле. Этот дом, отражает новую эпоху достижений человека. Преимущества комплекса: • Дизайн-проект дома выполнен в торжественном и одновременно изящном стиле. • Дизайнерское решение мест общего пользования. В каждом подъезде предусмотрены вело-колясочные и гостевые холлы, пандусы для инвалидов • Полностью закрытая внутридомовая территория • Безопасные детские и спортивные площадки • Крытый паркинг 61 машино-место + гостевые парковочные места внутри двора (второй этаж) и вне дома • Видеонаблюдение и умная домофония Удобная транспортная развязка. Вокруг ЖК множество социально-значимых объектов. В шаговой доступности: - три крупных торгово-развлекательных и бизнес-центра; - образовательные и дошкольные учреждения; - учреждения здравоохранения; - места проведения досуга (рестораны, бары, кофейни). - отсутствие экологически "грязного" производства Технические особенности дома: •Внешние стены дома выполнены из керамического термоблока с облицовочным керамическим кирпичом. Экологически чистый материал, высокая теплоэффективность, обладает функцией шумоизоляции. • Окна с внешней стороны дома панорамные утепленный алюминий, применяется в холодных помещениях. В жилых помещениях ПВХ позволяет сохранять тепло и препятствует влагообразованию. • Вентиляционные каналы фирмы Schiedel Разводка отопления и воды выполнена из сшитого полиэтилена. Преимущества: отсутствие коррозии и экономия в отоплении они безопасно монтируются в стяжку и термоустойчивы. В доме предусмотрено газовое индивидуальное отопление и газовая плита Квартиры сдаются в следующем комплекте: • Отделка White Box - тщательная предчистовая отделка, после которой можно выполнять чистовые работы • Высота потолков 3 м, с учетом стяжки под напольное покрытие • Немецкие котлы, фирмы Vaillant, экономичное газопотребление, бесшумность • Входная металлическая дверь • Алюминиевые радиаторы • Полная разводка электрики • Разводка отопления и воды выполнена из сшитого полиэтилена. Преимущества: отсутствие коррозии и экономия в отоплении они безопасно монтируются в стяжку и термоустойчивы. В доме предусмотрено газовое индивидуальное отопление и газовая плита • Возможно согласование теплых полов на этапе стройки Описание комплекса Жилой комплекс "Голос Эпохи", представляет собой 9ти этажное кирпично-монолитное здание, выполненное в торжественном и одновременно изящном стиле ардеко. Величественность Сталинского Ампира, в современном исполнении. Роскошь и масштаб прошлого с технологичностью настоящего. В комплексе представлены планировочные реш








































































