Мы используем куки-файлы. Соглашение об использовании
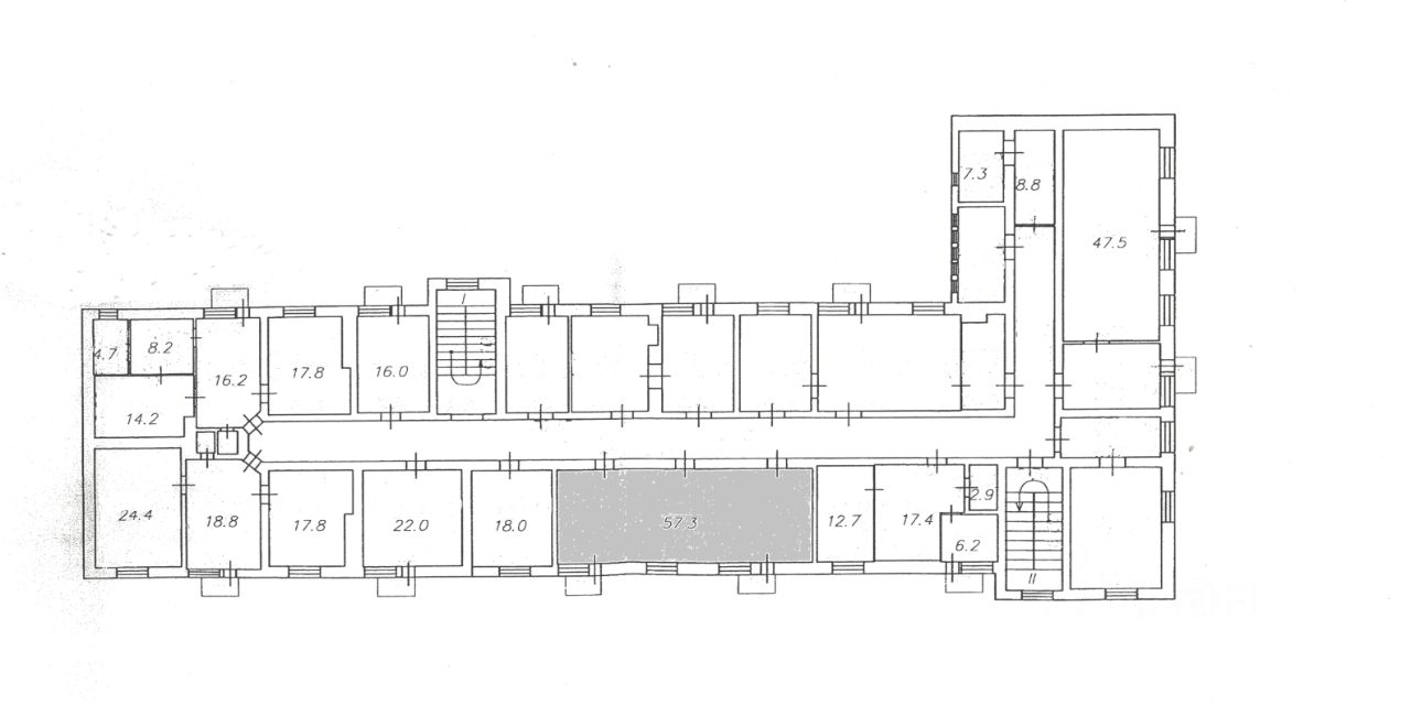
Площадь57,3 м²
Этаж4 из 4
О помещении: Офис, общая площадь 57.3 м², этаж-4, административного здания. В арендную плату коммунальные услуги включены (Электричество, вода,отопление в отопительный сезон.). О здании: Административное здание, общая площадь 2527.1 м², 4 этажа. На каждом этаже офисы, разной площади. Офисы состоят из: 1 одного кабинета, 2 двух кабинетов, 3 трёх кабинетов, 4 четырёх кабинетов. Есть офис, этаж-1 , с отдельным входом. Место расположение г.Астрахань ул.Бахтемирская, здание 5 В шаговой доступности остановки общественного транспорта, набережная реки Волга, магазины, аптеки, кафе. Аренда офиса. Аренда кабинета. Аренда помещения. Сдаю офис. Сдаю кабинет. Сдаю помещения. Офис Кабинет Помещение
lock

Войдите или зарегистрируйтесь
для просмотра информации

Просматривайте условия сделки и всю информацию об объекте
Сохраняйте фильтры в поиске и не вводите заново
Доступ к избранному с любого устройства
Неограниченное добавление в избранное
Позвоните автору
Вам ответят на все вопросы
Остались вопросы по объявлению?
Позвоните владельцу объявления и уточните необходимую информацию.
  • Инфраструктура
  • Похожие рядом
  • Тип зданияАдминистративное здание
  • Общая площадь2 527,1 м²
Центральное отопление
Помощь надёжных риелторов
Риелтор партнёр Циан поможет купить или продать любую недвижимость
Отдел арендыID 113533982
  • Документы проверены
  • 2 года 3 месяца на Циане
  • 19 объявлений
  • 42 975 ₽/мес.

    Прямая аренда (от года), минимальный срок аренды 1 месяц, предоплата за 1 месяц

    602 $/мес.
    514 /мес.
    Цена за метр
    9 000 ₽ в год
    Налог
    УСН
    Комиссия
    нет
    Коммунальные платежи
    не включены
    Эксплуатационные расходы
    не включены
    Отдел арендыID 113533982
    Документы проверены