

156 000 ₽/м²
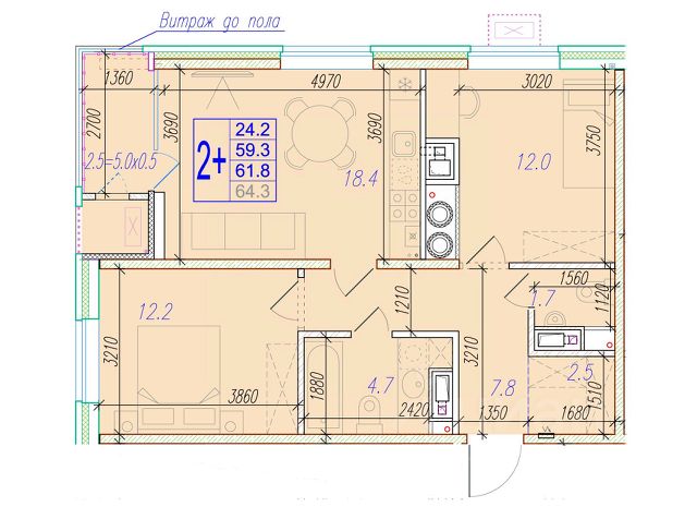
Жилой квартал "Центральный" традиции качества, авторская архитектура и современные технологии. Расположенный в самом центре он точно удивит вас своей масштабностью! Эксклюзивный проект строительной корпорации "Девелопмент-Юг" с собственным прогулочным бульваром, современными детскими и спортивными площадками. Квартал предполагает строительство тринадцати современных домов. Панорамные окна открывают завораживающий вид на исторический центр города и Астраханский Кремль. Жилой квартал "Центральный" это дома нового поколения для людей, которые выше всего ценят качество, комфорт, безопасность и своё время, выбирая лучшее для своей семьи. В каждой квартире предусмотрено индивидуальное отопление. Монолитно-кирпичная технология строительства и высококачественные окна REHAU GRAZIO обеспечивают высокую степень шумоизоляции. А эргономичные планировки помогут максимально эффективно оптимизировать пространство вашей квартиры. Приобрести квартиру в жилом квартале "Центральный" можно с предчистовой отделкой White Box или готовой отделкой под ключ от застройщика. На сегодняшний день доступна опция online-регистрации сделки и дистанционный показ квартиры. Купить 2-комнатную квартиру на улице Трофимова в городе Астрахань.























































































































































