


175 188 ₽/м²
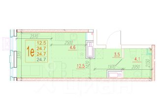
"Зеленые кварталы" — первый жилой район от компании "РАЗУМ", создателя "Сердце Каспия" и "НАСЛЕДИЕ" в Астрахани, состоящий из пяти зелёных кварталов, объединенных общим бульваром. Жилой район расположен в центре университетской жизни Астрахани. Рядом находятся детские сады, школы, Центральный стадион, досуговые и развивающие центры и большая прогулочная зона вдоль Комсомольской набережной. Общая площадь благоустройства проекта — 7 гектаров. Главная особенность проекта — переменная этажность домов от 8 до 25 этажей. Березовый квартал — территория изысканности с 2 уровнями благоустройства территории. Первый уровень — свой двор-парк. Это благоустроенная придомовая территория с дендропарком, в котором деревья и кустарники высажены с учетом всех четырех сезонов. Второй уровень — просторный бульвар протяженностью 270 м, объединяющий все кварталы в единой целое. "Зеленые кварталы" — это - территория без машин; - безбарьерная среда; - единый экостиль в оформлении дворовых пространств в соответствии с названием квартала; - 24 тематические зоны на бульваре: пространства для отдыха и релакса с гамаками и шезлонгами, центральная площадь с амфитеатром и контактным фонтаном, 2 зоны work-out, детские игровые площадки, разделенные по возрастам, тарзанка, водные и скалолазные конструкции, песочницы, батуты; - велодорожка длиной 1200 м, проходящая через весь жилой район и ПЕРВОЕ в Астрахани велокафе; - детский сад на 125 мест на территории района и рассчитан 5 групп разного возраста; - площадка для выгула собак; - многоуровневое освещение и подсветка фасадов; - видеонаблюдение; - эстетичные подъездные холлы со сквозными подъездами и комфортной зоной ожидания. В проекте представлены 107 планировочных решений: от уютных студий 31,1 м² до квартир с тремя спальнями и кухней-гостиной 128 м² с функциональным разделением на гостевую и приватные зоны. Для воплощения самых смелых дизайнерских решений есть эксклюзивные квартиры с собственной террасой от 6 м² до 34 м².




























































































